





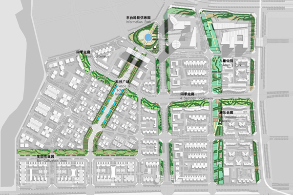
Fengtai Science Park Landscape Design The Fengtai Science Park is parkland in the main street green belt, width of 20-60 m range. The project focused on highlighting the green network system as well as to landscaping roadside and strengthen the overall effect of the green corridor. Meanwhile, the green corridor and construction land maintained with the diversity of the internal interface between garden. Landscape Design prominent industrial base overall style: simple, crisp, to show a rational science and technology park atmosphere, while reflecting the information age, rhythm, expression of integration of science and natural harmonious state. Forming a unique: "GREEN NET" into the "green corridor network." Location: Fengtai District, Beijing |